Up to
150K SF
Available
118,000 SF contiguous block, with full floors of 21,600 SF, and the partial 5th floor available for lease.
Up to
160K SF
Available
120,000 SF contiguous block, with full floors of 21,600 SF, and the partial 5th floor available for lease.
Floor 12
Entire
21,635 RSF
As Built
Core & Shell
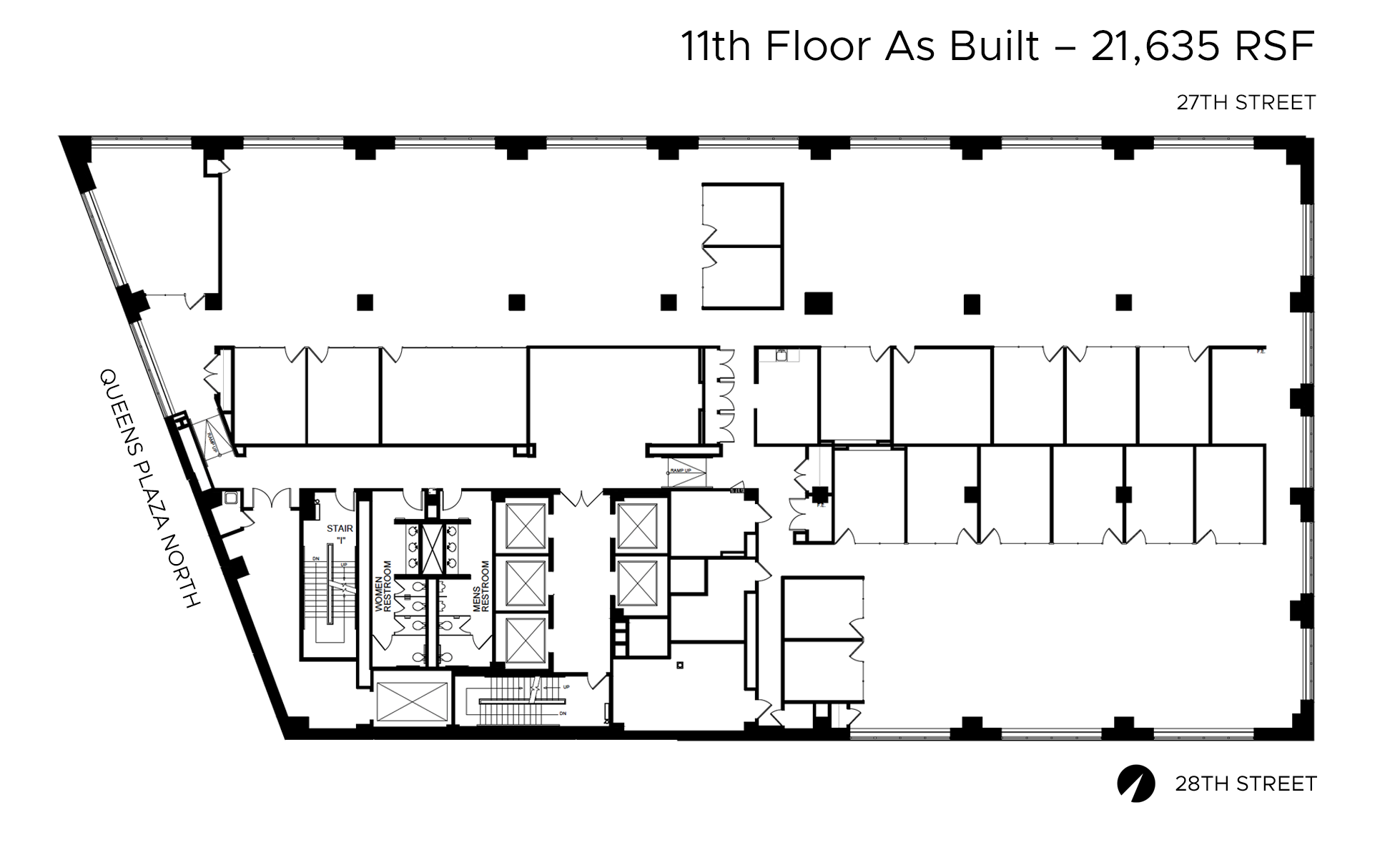
Floor 11
Entire
21,635 RSF
As Built
As Built
Core & Shell
Floor 10
Entire
21,635 RSF
As Built
Core & Shell
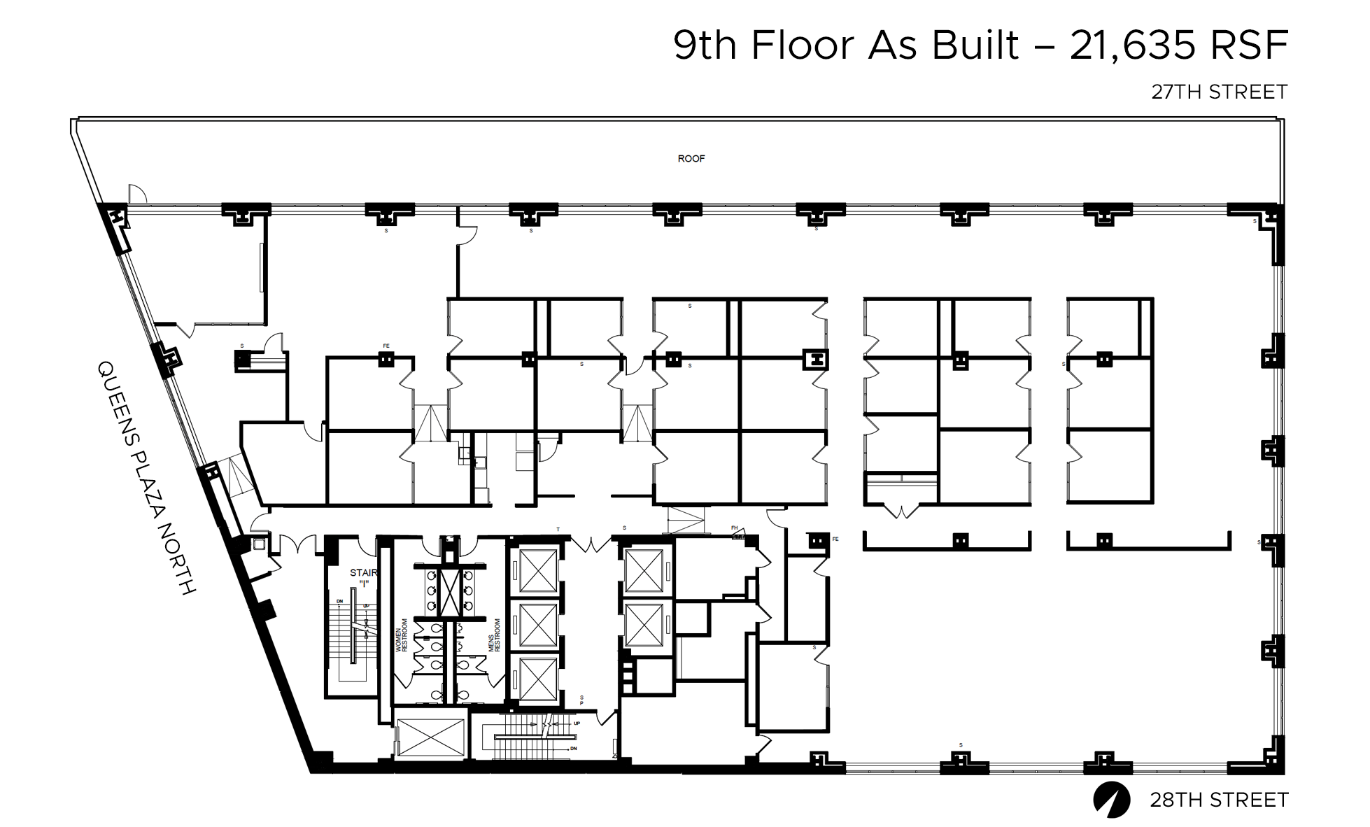
Floor 9
Entire
21,635 RSF
As Built
Core & Shell
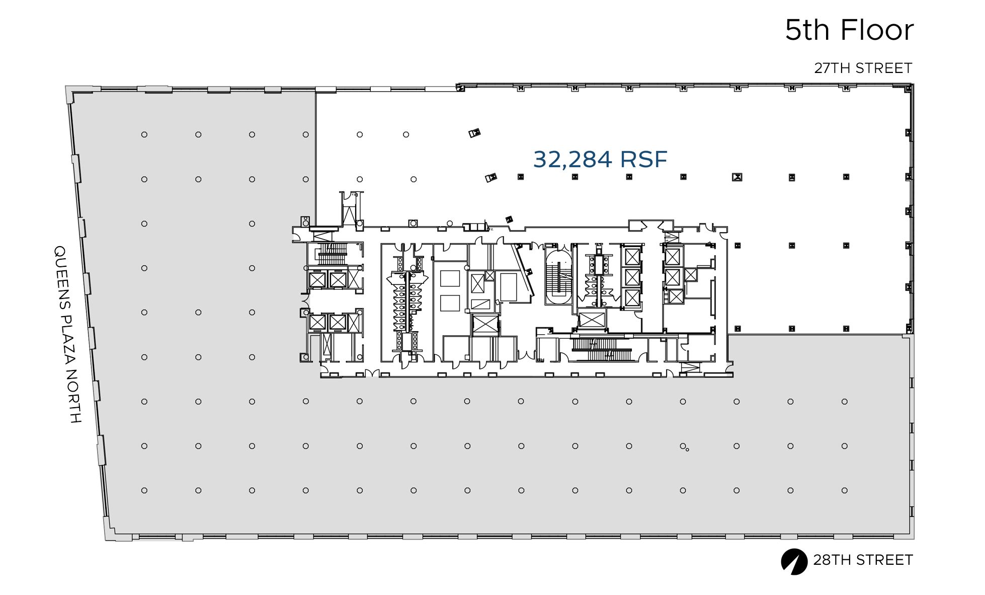
Floor 5
Entire
32,284 RSF
As Built
Core & Shell
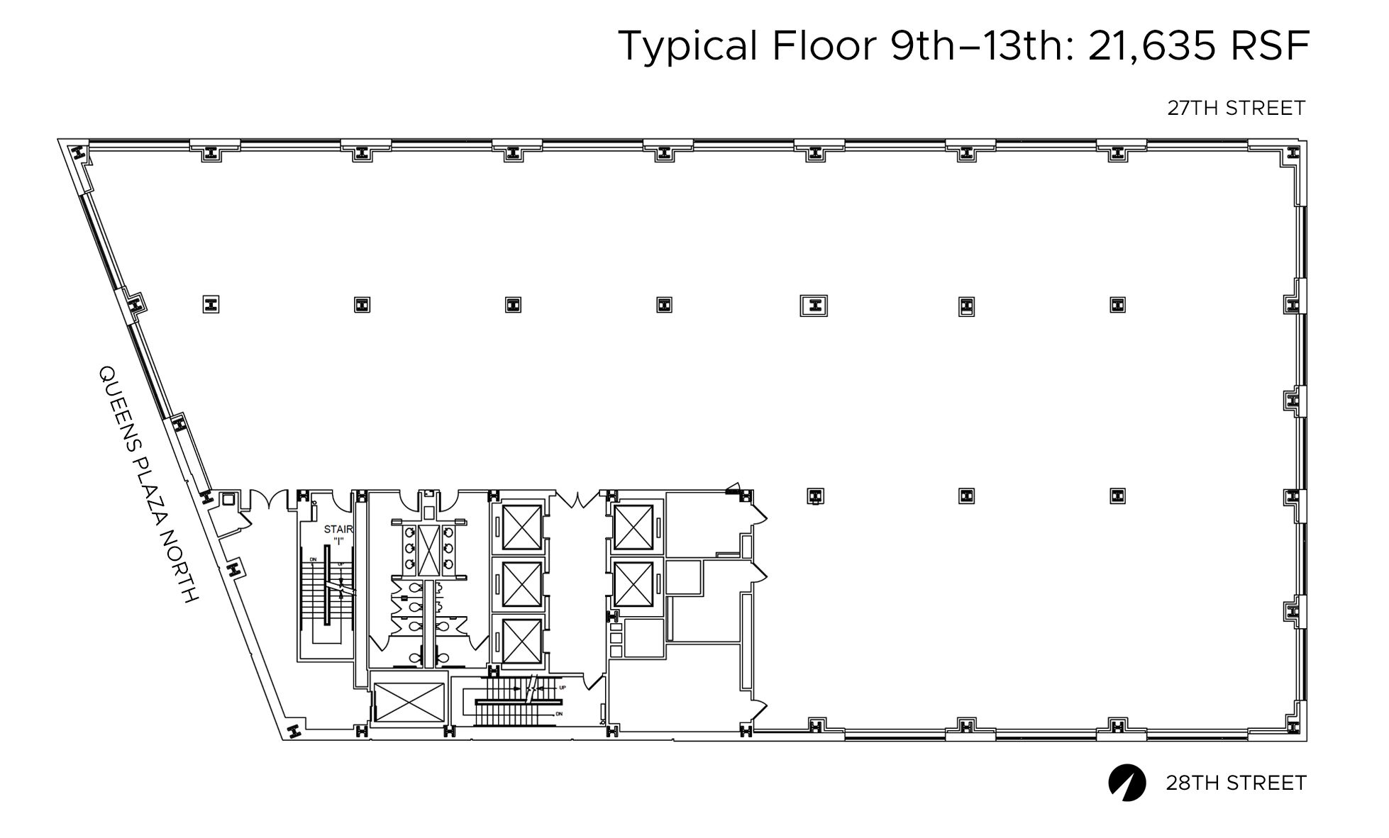
Floor 13 21,635 RSF
ENTIRE 21,635 RSF
Floor 12 21,635 RSF
As Built
Core & Shell
ENTIRE 21,635 RSF
Floor 11 21,635 RSF
As Built
As Built
Core & Shell
ENTIRE 21,635 RSF
Floor 10 21,635 RSF
As Built
Core & Shell
ENTIRE 21,635 RSF
Floor 9 21,635 RSF
As Built
Core & Shell
ENTIRE 21,635 RSF
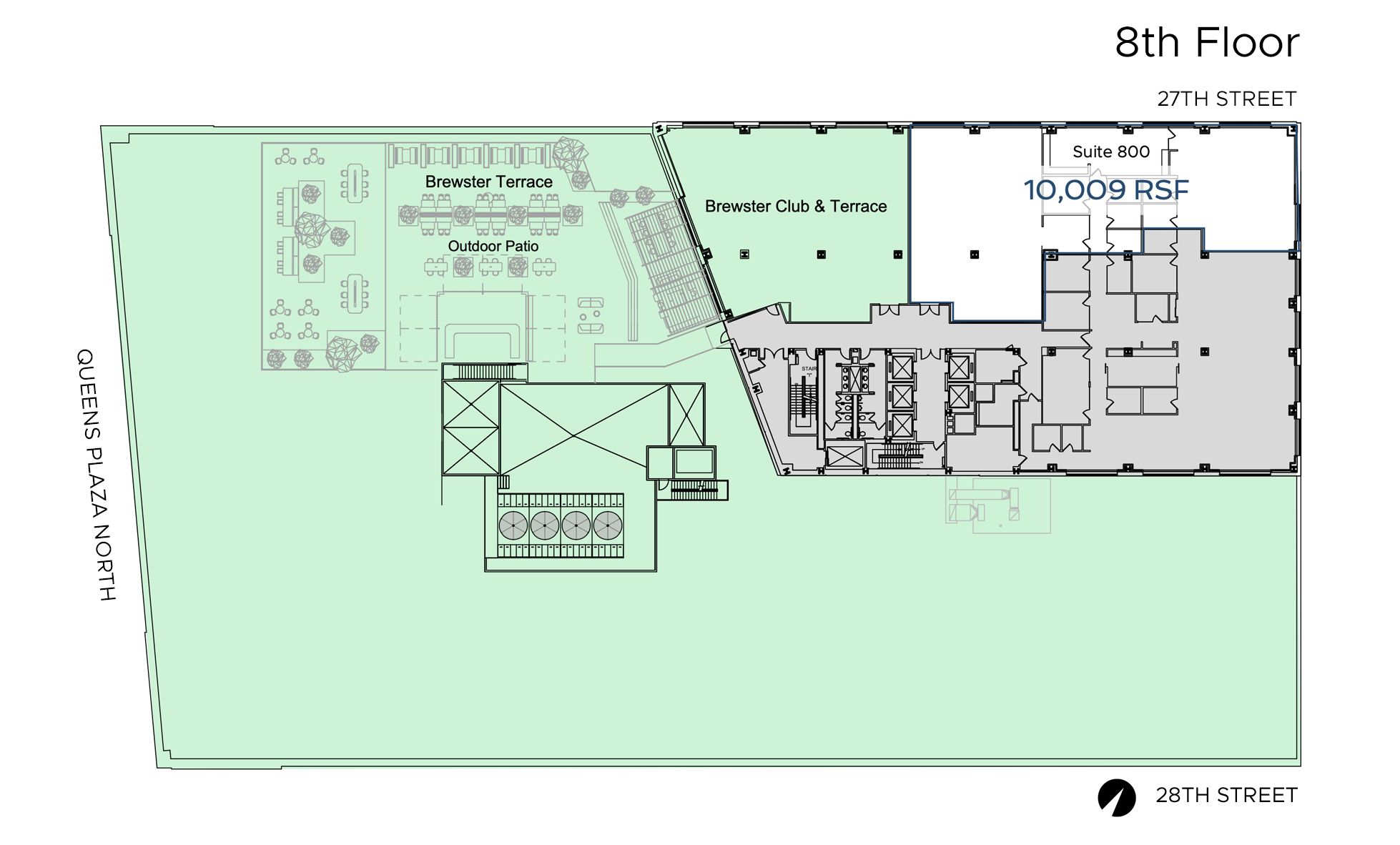
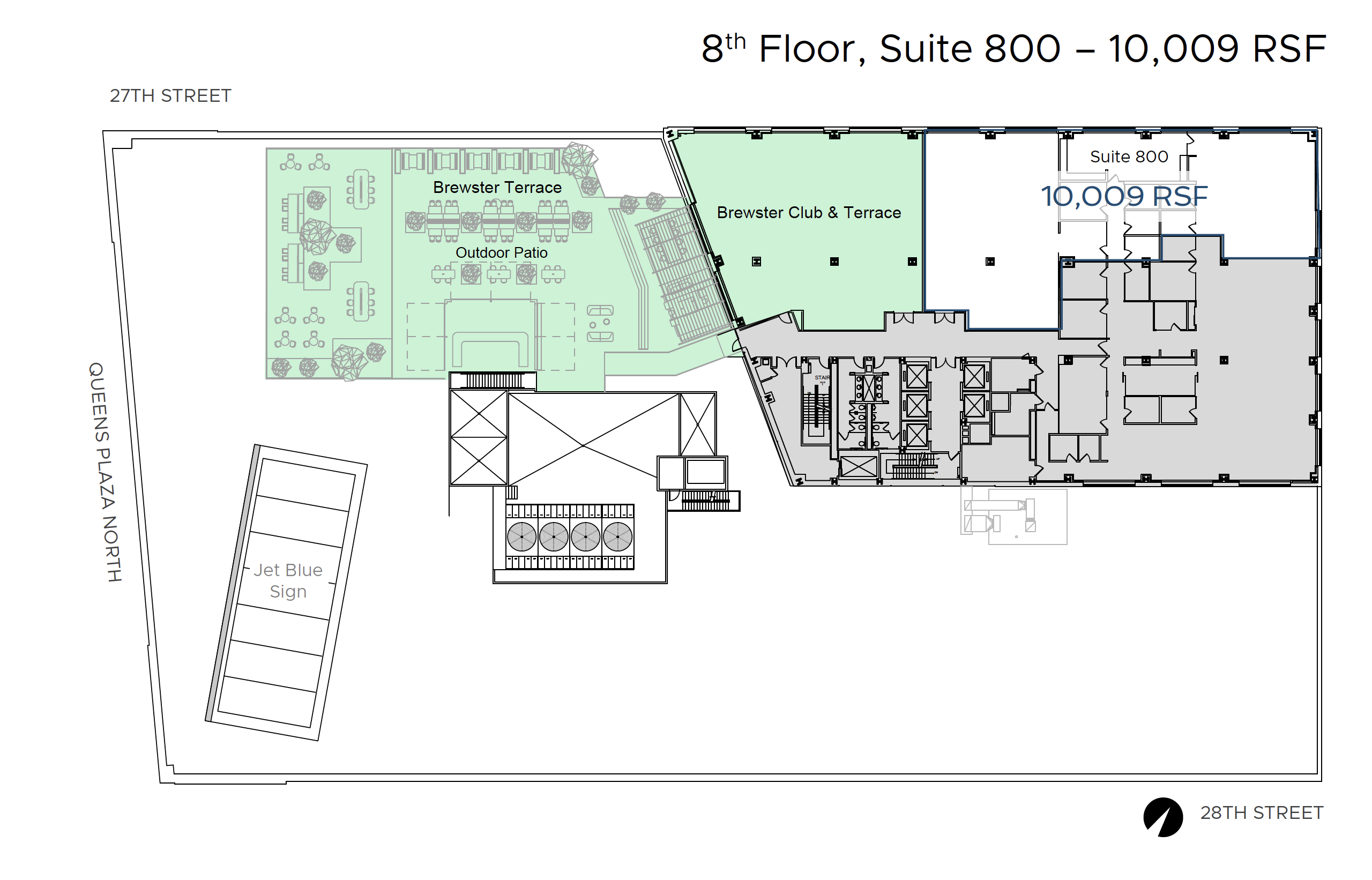
Floor 8 10,009 RSF
Partial 10,009 RSF
Floor 5 32,284 RSF
As Built
Core & Shell
ENTIRE 21,635 RSF
Floor 2 18,344 RSF
PARTIAL 18,344 RSF
Lower Level 12,064 RSF
PARTIAL 12,064 RSF